STARCZANOWO, Starczana 58

Funkcjonalny dom bliźniaczy w świetnej lokalizacji w miejscowości Starczanowo koło Nekli, blisko Wrześni. Szybki, dogodny dojazd do Poznania, Wrześni i Gniezna.

Inwestycja zakończona, zamieszkała.

Budynek przestronny i funkcjonalny. Klasyczna elewacja z szerokimi wykuszami od frontu i tyłu domu oraz eleganckim połączeniem struktury tynku z drewnianymi elementami.

Dom wygodnie podzielony jest na dwie strefy: dzienną na parterze i nocną na piętrze. Jeden lokal o powierzchni użytkowej ok 110m2, a ponad 114 m2 powierzchni całkowitej składa się z przestronnego salonu, kuchni z jadalnią, łazienki, holu i pom. gosp. na parterze oraz trzech dużych pokoi sypialnych (jedna z możliwością zabudowy garderoby), łazienki oraz korytarza na piętrze. Dodatkowo dom ma spory stryszek do zagospodarowania (ok. 24m2).

wykończenie wnętrza

Wnętrze wykończone tynkami maszynowymi, schody i posadzka betonowa, izolacja pianką PUR/wełna mineralną oraz płyta nida-gis na sufitach piętra + schody amerykańskie na strych. Lokal wyposażany jest w: okna PCV z roletami zewnętrznymi we wszystkich oknach (w salonie rolety elektryczne). Dom przygotowany jest do założenia instalacji alarmowej, domofonowej oraz TV sat (w każdym pokoju). Instalacja elektryczna, wod-kan oraz centralnego ogrzewania jest już w całości przygotowana łącznie z piecem gazowym.

wykończenie zewnętrzne

Do każdego z lokali osobno przynależy działka/ogród o wielkości ok 676m2. Działka jest ogrodzona siatką na tyłach i z boku budynku. Dom posiada parapety zewnętrzne, okna trzyszybowe, pięciokomorowe z roletami zewnętrznymi oraz drzwi zewnętrzne dobrane kolorystycznie tak, by tworzyły spójną estetycznie całość z elewacją budynku.

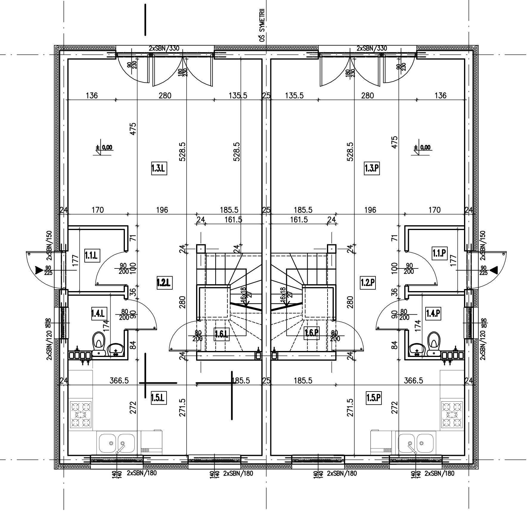
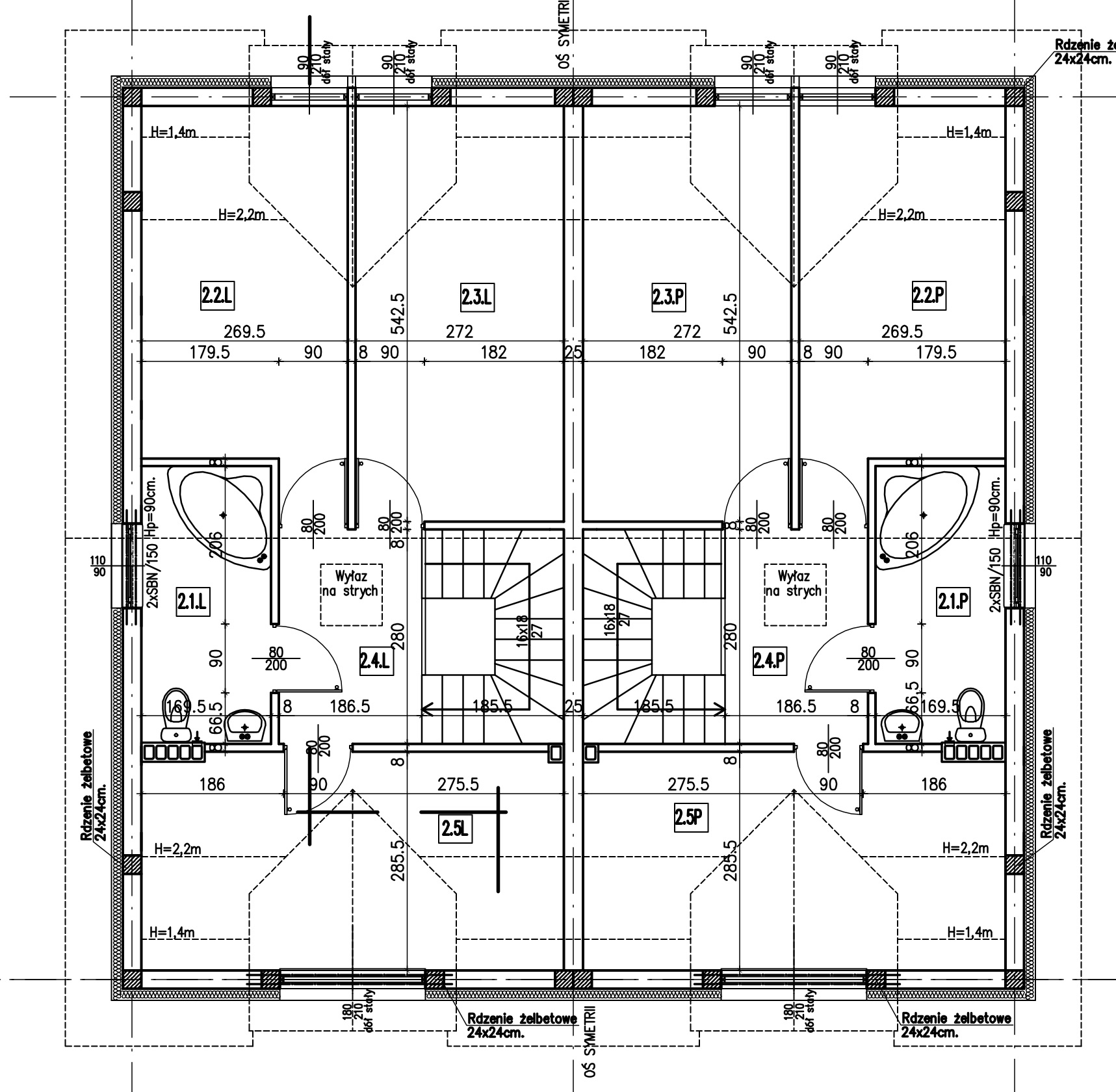
zestawienie powierzchni

PARTER: 58,71:
  • przedsionek 2.83 m2
  • korytarz + kl. schod. 7.69 m2
  • salon 28.43 m2
  • łazienka 2.68 m2
  • kuchnia z jadalnią 14.98 m2
  • pom. gospodarcze 2.1 m2
PIĘTRO: 51,49 / 55,84 m2:
  • łazienka 6.13 m2
  • pokój 13.13 m2
  • pokój 14.76 m2
  • hall 6.22 m2
  • pokój 15.6 m2
STRYSZEK : 24 m2:

uwagi

Kupujący nie płacił podatku PCC.